Beliebte Lage mit kurzen Wegen: Versetztes RMH in Langenhagen - Garage, Garten & Bäcker um die Ecke
Objektart
Adresse
Objektdaten
Informationen
Ausstattung
Details
In einer der beliebtesten Wohngegenden von Langenhagen wartet dieses versetzte Reihenmittelhaus (Baujahr 1961) auf neue Eigentümer. Die besondere, versetzte Bauweise sorgt nicht nur für eine optisch ansprechende Architektur, sondern bietet im Vergleich zum klassischen Reihenhaus auch ein deutliches Plus an Privatsphäre zu den Nachbarn.
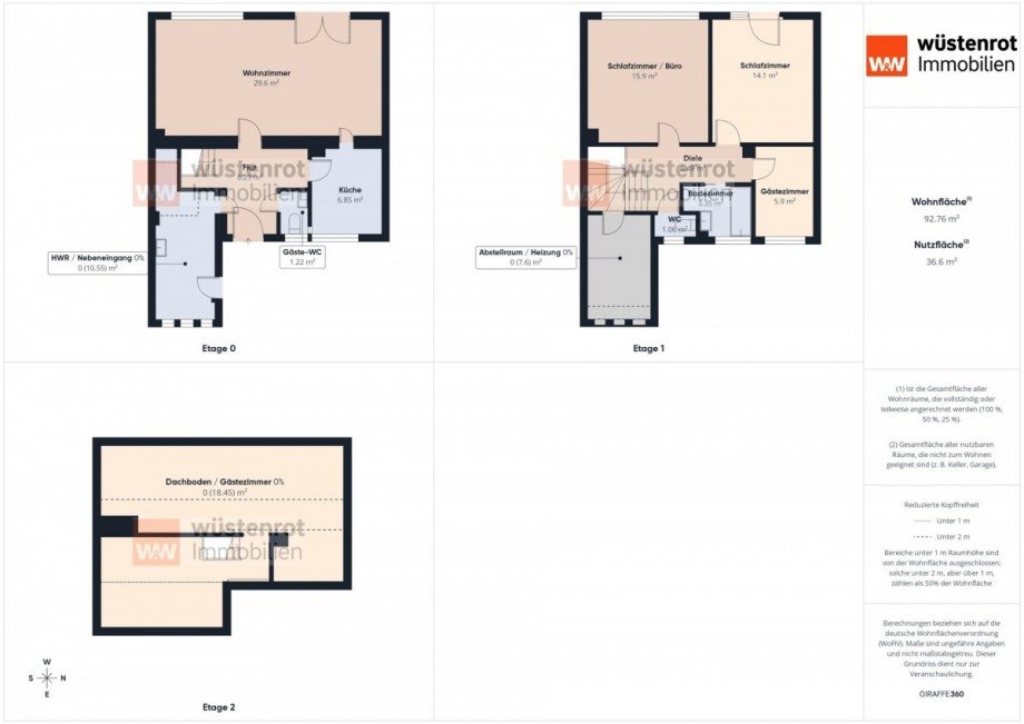
Auf einer Wohnfläche von ca. 92 m² erstreckt sich ein durchdachtes Raumwunder, das ideal für Paare oder kleine Familien geeignet ist.
Vom Eingangsbereich mit praktischem Gäste-WC gelangen Sie in die separate Küche und das Herzstück des Hauses: das lichtdurchflutete Wohnzimmer. Große Fensterfronten öffnen den Blick in den eigenen Garten und sorgen für eine freundliche Atmosphäre. Die Terrassentür sowie das große Fenster (2017) zum Garten wurden bereits erneuert und präsentieren sich in zeitgemäßem Zustand. Von hier aus treten Sie direkt auf die Westterrasse - der ideale Ort, um nach Feierabend die Abendsonne zu genießen.
Ein weiterer Pluspunkt auf dieser Etage ist ein praktischer Abstellraum, der als komfortabler Kellerersatz dient und wertvolle Staufläche bietet.
Im ersten Stock befinden sich die Schlafräume. Das Hauptschlafzimmer überzeugt mit einem besonderen Highlight: einem direkten Zugang zum Westbalkon, der einen herrlichen Blick in Ihren Garten bietet. Das Badezimmer ist klassisch aufgeteilt; es verfügt über eine Badewanne und ein Fenster. Besonders praktisch für den morgendlichen Ablauf ist das separate WC direkt daneben. Der Charme des Baujahres ist hier noch durch die farbigen Fliesen erkennbar - dies bietet Ihnen die wunderbare Gelegenheit, entweder den beliebten Retro-Look zu pflegen oder durch eine Modernisierung Ihre eigene Wellness-Oase zu schaffen.
Ein interessantes Entwicklungspotenzial bietet das Gästezimmer auf dieser Etage: Es eignet sich hervorragend, um einen neuen Zugang zum Dachboden zu schaffen und diesen künftig als zusätzliche Wohnfläche auszubauen. Damit ließe sich das Raumangebot des Hauses deutlich erweitern.
Auch technisch besteht hier Modernisierungsbedarf: Sämtliche Fenster / Dachfenster sowie die kleinen Butzenfenster (nicht Wohnzimmer u. Schlafzimmer mit Balkon) sollten erneuert werden, um den energetischen Standard zu verbessern und die zukünftige Wohnqualität zu steigern. Im Zuge der Renovierung sollten die Elektrik erweitert und modernisiert werden. Im nützlichen Abstellraum (OG) befindet sich die neue Brennwertheizung aus dem Jahr 2023.
Über eine komfortable elektrische Bodentreppe (eingebaut 2024) erreichen Sie den Dachboden. Dieser wurde bereits 1973 ausgebaut und bietet wertvolle Zusatzfläche (insgesamt ca. 18m²), die sich künftig - insbesondere nach einem möglichen Zugang aus dem Gästezimmer - hervorragend als vollwertige Wohnfläche, Gästezimmer oder Hobbyraum nutzen lässt.
Das Haus steht auf einem 287 m² großen Eigentumsgrundstück. Der Garten ist pflegeleicht angelegt und bietet genügend Raum für Erholung, ohne viel Arbeit zu machen. Ein massiver Pluspunkt ist die Parksituation: Zum Angebot gehört eine eigene Garage auf dem angrenzenden Garagenhof (Ihr Miteigentumsanteil an der Hoffläche beträgt großzügige ca. 92 m²). Smartes Detail: Das Garagentor verfügt über einen elektrischen Antrieb, der autark und nachhaltig über eine eigene Solaranlage mit Akku versorgt wird.
Ausstattung & Highlights auf einen Blick:
- Bauweise: Versetztes Reihenmittelhaus (Bj. 1961), massiv
- Wohnfläche: ca. 92 m² (zzgl. Nutzfläche im Dachboden, HWR, Abstellraum OG - ca. 36 m²)
- Grundstück: 287 m² Hausgrundstück + ca. 92 m² Anteil am Garagenhof
- Heizung: Neue Gas-Brennwertheizung (Einbau 2023)
- Fenster: Kunststofffenster mit Isolierverglasung, Aussenrollläden elektrisch
Aufteilung:
- EG: Wohnzimmer mit Terrassenzugang, Küche, Gäste-WC
- OG: 2 Schlafzimmer, Gästezimmer, Westbalkon, Wannenbad (Tageslicht), separates WC, Heizungs-/Abstellraum
- DG: Ausgebaut (Zugang via elektr. Bodentreppe), ideal als Nutzfläche
- Außenbereich: Westterrasse mit teilw. Überdachung, pflegeleichter Garten
- Parken: Garage mit elektrischem Tor (Solar-Akku-Betrieb)
- Keller: Nicht unterkellert
Dieses Haus hat eine solide Substanz in beliebter Lage. Die erst 2023 erneuerte Heizung nimmt Ihnen eine große Investitionssorge ab. Mit den Renovierungsarbeiten (Böden/Wände/Bäder) können Sie dieses Schmuckstück in ein modernes Traumhaus verwandeln - und die Sonntagsbrötchen holen Sie dank der top Lage ganz entspannt zu Fuß!
Die Immobilie befindet sich in einer ruhigen und beliebten Wohnlage von Langenhagen, gelegen in einer Parallelstraße zur Robert-Koch-Str. Hier genießen Sie eine entspannte Nachbarschaft ohne Durchgangsverkehr, sind aber dennoch hervorragend angebunden.
Das Versprechen der "Sonntagsbrötchen" wird eingelöst - die Bäckerei Raute (Theodor-Heuss-Straße) liegt in direkter Nähe. Weitere Einkaufsmöglichkeiten für den täglichen Bedarf sind über den Reuterdamm schnell erreicht.
Ein großer Vorteil für Familien ist die fußläufige Nähe zum neuen Gymnasium und zur Wasserwelt Langenhagen. Der Schulweg ist sicher und kurz, und das Freizeitvergnügen beginnt direkt vor der Haustür.
Über den Reuterdamm / Theodor-Heuss-Str. verfügen Sie über eine schnelle Anbindung an den öffentlichen Nahverkehr (Buslinien) sowie an das Straßennetz Richtung Langenhagen-Zentrum und Hannover.
Fazit: Eine ideale Lage für alle, die kurze Wege schätzen und Schule sowie Freizeitangebote bequem zu Fuß erreichen möchten.
Es liegt ein Energiebedarfsausweis vor.
Dieser ist gültig bis 4.11.2035.
Endenergiebedarf beträgt 172.30 kwh/(m²*a).
Wesentlicher Energieträger der Heizung ist Gas.
Das Baujahr des Objekts lt. Energieausweis ist 2023.
Die Energieeffizienzklasse ist F.
Ihr neues Zuhause wartet - Besichtigung nach Vereinbarung
Sie möchten sich persönlich von dieser Immobilie überzeugen? Sehr gerne! Senden Sie uns einfach per E-Mail Ihre Wunschtermine sowie Ihre Kontaktdaten - wir stimmen den Besichtigungstermin individuell mit Ihnen ab und melden uns zeitnah bei Ihnen zurück.
Für Rückfragen oder weitere Informationen stehen wir Ihnen selbstverständlich jederzeit zur Verfügung. Wir begleiten Sie kompetent und zuverlässig auf dem Weg zu Ihrer Wunschimmobilie.
Bitte beachten Sie: Alle Angaben im Exposé beruhen auf Informationen, die wir von unserem Auftraggeber erhalten haben. Für deren Richtigkeit und Vollständigkeit übernehmen wir keine Gewähr. Dies gilt auch für Angaben von Behörden oder Dritten.
Unser Service für Ihre Finanzierung
Damit Sie sorglos in Ihre Zukunft starten können, stehen Ihnen unsere erfahrenen Finanzierungspartner auf Wunsch mit Rat und Tat zur Seite. Gerne stellen wir den Kontakt zu einem passenden Finanzierungsspezialisten her, der Ihre individuelle Situation professionell bewertet und maßgeschneiderte Lösungen anbietet.
Sie möchten selbst verkaufen? Wir sind für Sie da!
Wenn Sie den Verkauf Ihrer eigenen Immobilie planen, profitieren Sie von unserem Rundum-sorglos-Paket. Wir übernehmen für Sie:
- eine fundierte Objektaufnahme,
- die professionelle Immobilienbewertung,
- die Erstellung eines hochwertigen Exposés,
- die optimale Präsentation auf führenden Online-Portalen,
- die Organisation und Durchführung von Besichtigungen,
- die Begleitung von Verkaufsverhandlungen,
- die vollständige Kaufabwicklung bis hin zur
- Vorbereitung und Betreuung beim Notartermin.
Sprechen Sie mit uns - wir freuen uns auf Sie
Ob Kauf oder Verkauf: Wir sind Ihr zuverlässiger Partner rund um die Immobilie. Nehmen Sie Kontakt zu uns auf und entdecken Sie, wie unkompliziert und erfolgreich Immobiliengeschäfte sein können - mit persönlicher Beratung und individuellem Service.
Ansprechpartner
Telefax: 0049714116832309
oezcan.greeske@wuestenrot.de
Links
Energieausweis (Bedarfsausweis)
172,30 kWh / (m²*a) Endenergiebedarf
172,30 kWh / (m²*a) Endenergiebedarf
172,30 kWh / (m²*a) Endenergiebedarf
Weitere Informationen
| Wesentlicher Energieträger | GAS |
| Energieausweis gültig bis | 2035-11-04 |
| Energieausweis Jahrgang | ab dem 1.5.2014 |
| Energieausweis Werteklasse | F |
| Energieausweis Baujahr | 2023 |
| Energieausweis Gebäudeart | Wohngebäude |
| Befeuerung | Gas |
